Ricerca rapida
-
-
CERCA

Montechiarugolo (Tortiano)
MONTECHIARUGOLO rustichetto da ristrutturare

Rustico/Casale

Stampa scheda immobile
Tortiano, in posizione tranquilla, immobile da ristrutturare con possibilità di ricostruire una villa monofamiliare oltre accessori.
Agevolazioni fiscali di detrazione del 50% su un importo di € 96.000.
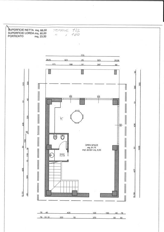
Il fabbricato è posizionato su un lotto di 595 mq.
Il rustico è trasformabile in abitazione con circostante area verde:
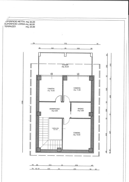
a piano terra si può realizzare il reparto giorno open space con bagno, al primo piano 3 camere, un bagno e un portico di 20 mq.

Caratteristiche

Codice
V001436
Prezzo
50.000,00 EUR
Mq
134
Classe
VA
Locali
5
Camere
3
Bagni
2
Mq Giardino
595
Stato Immobile
Da Ristrutturare
Grado
Medio
Posizione
Centro
Panorama
Vista Giardino
Orientamento
Nord Ovest Sud Est
Lati Liberi
4
Giardino
Privato
Arredi
Non Arredato
Tipo Soggiorno
Soggiorno
Tipo Cucina
Angolo Cottura
Riscaldamento
Da Creare
Tipo Riscaldam.
Caldaia
Tipo Impianto
No
Acqua Calda
Assente
Raffrescamento
No
Accessori
Passaggio Automobilistico, Passaggio Pedonale, Rete Dati

MAPPA

Via Solari , Montechiarugolo (PR)
Richiedi informazioni
Codice:
Nominativo: *
Telefono: *
Email: *
Dettagli richiesta: *
Autorizzo il trattamento dei miei dati personali in base Regolamento UE n. 679/2016 - Privacy Policy
Invia
Cookie preference