Ricerca rapida
-
-
CERCA

Traversetolo (Vignale)
Vignale villa con terreno

Casa singola

Stampa scheda immobile
Vignale di Traversetolo, in contesto verde e tranquillo, villa con due unità abitative con ingressi e impianti indipendenti, ideale per due nuclei familiari. Completano la proprietà un fabbricato accessorio e 4.000 mq di giardino circostante.
L’abitazione si sviluppa su tre livelli ed è dotata di infissi in doppio vetro, zanzariere, impianto d’allarme e soffitti con travi in legno a vista e pianelle in cotto.
L'appartamento al piano terra è composto da cucina abitabile, soggiorno, camera matrimoniale e bagno.
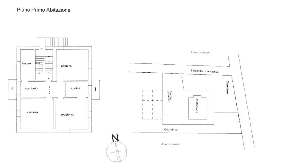
L'appartamento al piano primo è composto da un luminoso soggiorno con angolo cottura, due camere matrimoniali e un bagno, ampliabile con
l'ampio sottotetto tramite la scala interna già esistente. La copertura del sottotetto è stata realizzata con legno lamellare a vista e coibentato. I locali sono molto funzionali grazie alla loro altezza che permette di ricavare una zona studio o un ampliamento della zona notte.
Completano la proprietà un fabbricato di circa 150 mq con garage triplo, taverna con camino, bagno e grande portico esterno.
La disposizione delle unità abitative permette di avere due unità completamente indipendenti, per accedere al primo piano vi è sia una scala interna che una esterna.
Soluzione perfetta per chi cerca indipendenza, privacy e ampi spazi immersi nel verde.

Caratteristiche

Codice
V001462
Prezzo
550.000,00 EUR
Mq
468
Classe
G
Locali
12
Camere
3
Bagni
3
Box
1
Mq Box
50
Posti auto
8
Mq Giardino
4000
Stato Immobile
Ottimo
Grado
Medio
Posizione
Periferia
Panorama
Vista Aperta
Orientamento
Nord Ovest Sud Est
Totale Piani
Tre
Lati Liberi
4
Giardino
Privato
Arredi
Non Arredato
Tipo Soggiorno
Soggiorno
Tipo Cucina
Abitabile
Riscaldamento
Autonomo
Tipo Riscaldam.
Caldaia
Tipo Impianto
Radiatori
Fonte Energetica
Metano
Acqua Calda
Autonoma
Raffrescamento
Split
Infissi
Legno Doppio Vetro
Serramenti
Ottimo
Persiana
Persiana Legno
Pavim. Giorno
Gres Porcellanato
Pavim. Notte
Gres Porcellanato
Pavim. Cucina
Gres Porcellanato
Pavim. Bagno
Ceramica
Cantina - Solaio
Cantina
Accesso Disabili
Nessuna Barriera
Accesso interno disabili
Parziale
Isolamento
Non presente
Isolamento termico
Isolamento tetto/sottotetto
Isolamento acustico
Nessuno
Destinato a residenti
No
Impianto d’irrigazione
No
VMC
No
Accessori
Aria Condizionata, Camino, Cancello Elettrico, Doppi Vetri, Passaggio Automobilistico, Passaggio Pedonale, Porta Blindata, Rete Dati, Zanzariere

MAPPA

Strada del bottone , Traversetolo (PR)
Richiedi informazioni
Codice:
Nominativo: *
Telefono: *
Email: *
Dettagli richiesta: *
Autorizzo il trattamento dei miei dati personali in base Regolamento UE n. 679/2016 - Privacy Policy
Invia
Cookie preference