Ricerca rapida
-
-
CERCA

Traversetolo (Cazzola)
Casa con due unità abitative con giardino

Porzione di Casa

Stampa scheda immobile
Cazzola di Traversetolo in posizione panoramica vendesi casa con due unità abitative con accessi indipendenti, un ampio portico, un'autorimessa e un giardino circostante.
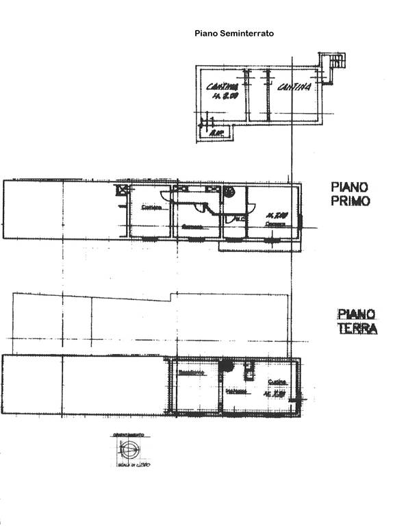
L'abitazione è semi indipendente e può ospitare due nuclei familiari distinti.
Un'unità è composta da un soggiorno con camino, una cucina abitabile con porta balcone, un bagno e un terrazzo, al piano primo vi sono due camere matrimoniali con tetto in legno a vista e un bagno. L'altra unità abitativa è composta da un soggiorno con camino e un angolo cottura con porta balcone che dà accesso ad un terrazzo, al piano primo vi sono due camere matrimoniali di cui una con balcone, una camera singola e un bagno. Completano la proprietà il giardino circostante e un garage singolo esterno con un ampio porticato panoramico e un angolo adibito a zona barbecue.

Caratteristiche

Codice
V001424
Prezzo
150.000,00 EUR
Mq
290
Classe
G
Locali
14
Camere
5
Bagni
3
Box
1
Mq Box
21
Posti auto
4
Mq Giardino
200
Mq Balcone
4
Stato Immobile
Abitabile
Grado
Medio
Posizione
Collina
Panorama
Vista Aperta
Orientamento
Est Nord Ovest
Totale Piani
Due
Lati Liberi
3
Giardino
Privato
Arredi
Non Arredato
Tipo Soggiorno
Doppio
Tipo Cucina
Abitabile
Riscaldamento
Autonomo
Tipo Riscaldam.
Caldaia
Tipo Impianto
Aria
Fonte Energetica
Metano
Acqua Calda
Autonoma
Raffrescamento
No
Infissi
Legno
Serramenti
Discreto
Persiana
Persiana Legno
Pavim. Giorno
Cotto
Pavim. Notte
Cotto
Pavim. Cucina
Cotto
Pavim. Bagno
Ceramica
Cantina - Solaio
Cantina
Accesso Disabili
No
Accesso interno disabili
Parziale
Appartamenti
Due
Isolamento
Non presente
Isolamento termico
Nessuno
Isolamento acustico
Nessuno
Accessori
Armadio a muro, Camino, Doppi Vetri, Passaggio Automobilistico, Passaggio Pedonale, Porta Blindata, Rete Dati, Ripostiglio, Zanzariere

MAPPA

Via La Fossola , Traversetolo (PR)
Richiedi informazioni
Codice:
Nominativo: *
Telefono: *
Email: *
Dettagli richiesta: *
Autorizzo il trattamento dei miei dati personali in base Regolamento UE n. 679/2016 - Privacy Policy
Invia
Cookie preference